Per maggiori informazioni contatta Epos Casa Camposampiero al numero 0499302542 oppure tramite il modulo di contatti
Informazioni principali
| Riferimento | 156C |
| Contratto | vendita |
| Tipologia | Villa |
| Mq | 400 |
| Prezzo | 330.000 € |
| C.E | ![]() |
| IPE | 0 |
| Camere | +3 |
| Bagni | 2 |
Descrizione
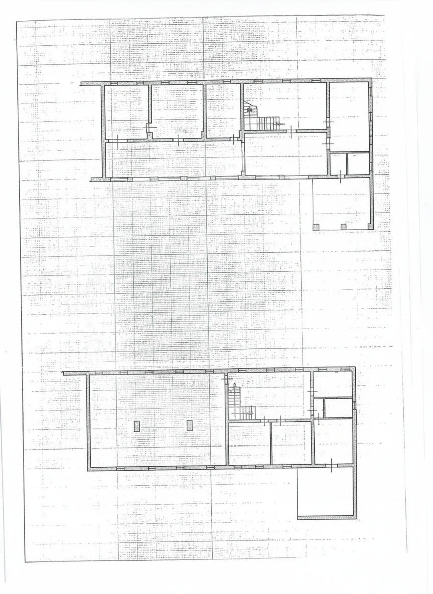
Scoprite questa straordinaria Villa d'altri tempi, situata nel comune di Massanzago. La proprietà offre una generosa superficie abitativa di ben 400 mq, distribuiti su due piani che ne esaltano l'eleganza.
Con uno scoperto privato di pertinenza di 1000mq e un ulteriore terreno adiacente di circa 10.000 mq, questa villa è perfetta per coloro che cercano spazi ampi e confortevoli. Un ampio parcheggio frontale accoglie gli ospiti mentre il portico impreziosito dai caratteristici archi regala una meravigliosa vista sul verde circostante.
Il piano terra si compone di un primo salone, una cucina attrezzata ideale per la preparazione dei vostri piatti preferiti e un bagno servente. Allo stesso piano troverete un ulteriore spazio nel quale ogni angolo racconta storie grazie ai dettagli dell'epoca come il caratteristico camino ed i muri in pietra faccia-vista che creano un'atmosfera calda e avvolgente.
Salendo al primo piano troverete travature in legno accompagnate da eleganti pavimenti in parquet: qui sono presenti tre camere matrimoniali spaziose, una camera singola ed un bagno dalle finiture originali del periodo della costruzione. Non dimentichiamo però gli oltre 100mq di superficie grezza al piano superiore che può essere personalizzata secondo le vostre esigenze.
Questa villa inoltre rappresenta non solo una residenza esclusiva ma anche un'opportunità unica per attività professionali data la sua versatilità d'uso.
Massanzago vanta ottimi collegamenti stradali verso Padova e Venezia, rendendola strategica sia per famiglie sia per chi desidera investire nella propria attività.
Non lasciatevi sfuggire quest'occasione! Contattateci allo 0499302542 presso l'agenzia di Camposampiero per ulteriori informazioni o per prenotare una visita.
Informazioni Immobile
Posizione
Contattaci
- agenzia@eposcasa.com
- 0499302542
- Piazza Castello, 7, Camposampiero (PD)


















